
Aranżacja wnętrz 
w stylu nowoczesnym
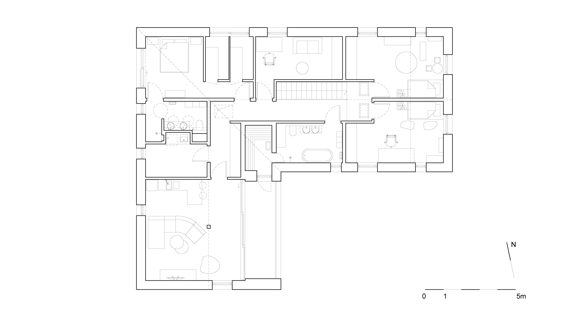
Dom we Wrocławiu ma kształt litery L. Centralnym elementem otwartej strefy dziennej o łącznej powierzchni 80m2 są rzeźbiarskie schody. Wewnątrz dominują nowoczesne i ponadczasowe rozwiązania, szlachetne i wyraziste materiały i kolory.
Projekt wnętrz stanowi kontynuację projektu budowlanego. Układ pomieszczeń został ustalony już etap wcześniej: obszerna strefa dzienna na parterze, na piętrze pokoje dzieci (blisko schodów), mała sypialnia z łazienką i garderobami oraz pokój kinowy nad garażem. Inwestorzy to fani eleganckich i nowoczesnych wnętrz. Zależało im na zastosowaniu wysokiej jakości materiałów i wysokiej funkcjonalności. Nie mogło zabraknąć spektakularnego efektu - wiszące schody robią wrażenie już od wejścia. Wnętrza na piętrze miały być wykończone bardziej ozdobnie. Prawie cały dom został wykończony deskami z ciemnego drewna. Kominek narożny, w tym jego boczna ściana z ukrytymi drzwiami do wc, został wykończony spiekiem kwarcowym. Inwestorom zależało na elementach z betonu. Zastosowaliśmy beton w dolnej części obudowy kominka i do wykonania trzech pierwszych stopni schodów.
inwestor: prywatny autor: Anna Smardz Marmur Studio projekt: 2017-2018, 2019-2020 realizacja: 2018-2022 zakres prac: projekt budowlany, projekt wnętrz z nadzorem powierzchnia: 250m2 lokalizacja: Wrocław zdjęcia: Maciej Lulko
inwestor: prywatny autor: Anna Smardz Marmur Studio projekt: 2017-2018, 2019-2020 realizacja: 2018-2022 zakres prac: projekt budowlany, projekt wnętrz z nadzorem powierzchnia: 250m2 lokalizacja: Wrocław zdjęcia: Maciej Lulko
Zobacz projekt architektoniczny domu!




“
Inwestorzy to fani eleganckich i nowoczesnych wnętrz. Zależało im na zastosowaniu wysokiej jakości materiałów i wysokiej funkcjonalności.

“
Nie mogło zabraknąć spektakularnego efektu - wiszące schody robią wrażenie już od wejścia.








“
Prawie cały dom został wykończony deskami z ciemnego drewna.



“
Wnętrza na piętrze miały być wykończone bardziej ozdobnie.





oglądaj dalej
︎
Architekt Wnętrz Wrocław 
Anna Smardz MARMUR STUDIO
- projektowanie wnętrz © 2024
Anna Smardz MARMUR STUDIO
- projektowanie wnętrz © 2024

